※掲載のないお部屋もリアルタイムで確認いたします。
			現状募集中のお部屋はご案内可能です。
			Brillia ist 三軒茶屋 ブラッサムテラスの事は何でもご相談ください。
			Brillia ist 三軒茶屋 ブラッサムテラスのお問い合わせ番号は『1037』です。
			東京都渋谷区代々木1-38-8 株式会社本州企画 代々木支店 e-room
			東京都知事(12)34823号
世田谷区太子堂3-38-1

家賃:252000円 1LDK

家賃:252000円 2LDK

家賃:252000円 1LDK

家賃:252000円 1LDK+Wic

家賃:251000円 2LDK

家賃:250000円 1LDK
 このページはBrillia ist 三軒茶屋 ブラッサムテラス515号室の賃貸情報専用のご紹介ページです。
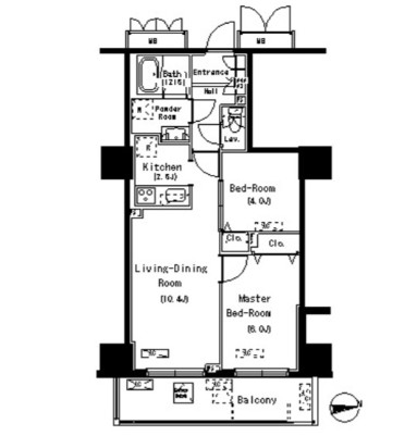
Brillia ist 三軒茶屋 ブラッサムテラス515号室は2008年1月 に世田谷区太子堂3-38-1に施工されたRC造10階・地下1階建のマンションの5階部分のお部屋です。1LDKのタイプのお部屋で広さが64.40㎡あり、敷金が1ヶ月・礼金が1ヶ月にお家賃248,000円に管理費8,000円です。仲介手数料無料・コンシェルジュデスク・カーシェアリングシステム・オートロック・宅配ボックス・ダブルロックシステム・ダウンライト・オートバス・浴室乾燥機・シャワートイレ・駐車場※保証会社のご利用(初回保証料:賃料等の50%、月額支払手数料:賃料等の1%)が必須となります。などの条件を持ち合わせています、e-roomでは渋谷区や新宿区や港区など広域にわたって賃貸物件情報を多数ご紹介しております。
Copyright © 2024 賃貸のe-room All rights reserved.