※掲載のないお部屋もリアルタイムで確認いたします。
現状募集中のお部屋はご案内可能です。
ベルファース芝浦タワーの事は何でもご相談ください。
ベルファース芝浦タワーのお問い合わせ番号は『312』です。
東京都渋谷区代々木1-38-8 株式会社本州企画 代々木支店 e-room
東京都知事(12)34823号
港区芝浦4-16-14

家賃:278000円 1LDK+N

家賃:278000円 1LDK

家賃:278000円 1LDK

家賃:277000円 2LDK

家賃:277000円 1K

家賃:277000円 1K

家賃:271000円 61.60㎡

家賃:271000円 69.92㎡
このページはベルファース芝浦タワー1904号室の賃貸情報専用のご紹介ページです。
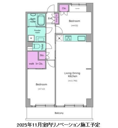
ベルファース芝浦タワー1904号室は2010年8月に港区芝浦4-16-14に施工されたRC造30階・地下3階建のマンションの19階部分のお部屋です。1LDK+WIC+SICのタイプのお部屋で広さが55.59㎡あり、敷金が1ヶ月・礼金が0ヶ月にお家賃274,000円に管理費12,000円です。仲介手数料無料・フリーレント1~2ヶ月(詳しくはお問い合わせ下さい)・ペット相談可(小型犬or猫2匹まで)・アップライトピアノ相談可・コンシェルジュ・フィットネスルーム・オートロック・防犯カメラ・宅配ボックス・モニター付きインターホン・オートバス・追焚機能・浴室乾燥機・システムキッチン・シャワートイレ・BS・CS・CATV・駐輪場・駐車場※保証会社のご利用(初回総賃料に50%・1年毎に10000円)が必須となります。などの条件を持ち合わせています、e-roomでは渋谷区や新宿区や港区など広域にわたって賃貸物件情報を多数ご紹介しております。
Copyright © 2024 賃貸のe-room All rights reserved.