※掲載のないお部屋もリアルタイムで確認いたします。
			現状募集中のお部屋はご案内可能です。
			パークハビオ中目黒の事は何でもご相談ください。
			パークハビオ中目黒のお問い合わせ番号は『516』です。
			東京都渋谷区代々木1-38-8 株式会社本州企画 代々木支店 e-room
			東京都知事(12)34823号
目黒区上目黒3-10-7

家賃:164000円 1R+WIC

家賃:164000円 1K

家賃:164000円 1DK

家賃:163000円 Studio

家賃:163000円 1DK

家賃:163000円 1DK

家賃:162000円 30.54㎡

家賃:163000円 31.28㎡

家賃:157000円 31.45㎡

家賃:163000円 32.22㎡

家賃:156000円 32.38㎡

家賃:163000円 32.71㎡
 このページはパークハビオ中目黒403号室の賃貸情報専用のご紹介ページです。
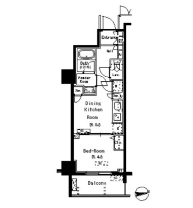
パークハビオ中目黒403号室は2014年9月に目黒区上目黒3-10-7に施工されたRC造5階建のマンションの4階部分のお部屋です。1Rのタイプのお部屋で広さが25.10㎡あり、敷金が1ヶ月・礼金が1ヶ月にお家賃160,000円に管理費10,000円です。仲介手数料無料・ペット相談可・SOHO相談可・オートロック・宅配ボックス防犯カメラ・ディンプルキー・ダブルロック・エレベーター・内廊下・システムキッチン・浴室乾燥機・追焚機能・シャワートイレ・駐輪場・駐車場・バイク置場・敷地内ゴミ置場・システムキッチン・エアコン・BS・CS・CATV・光ファイバー※保証会社のご利用(SBIギャランティ 初年度委託料:賃料等合計額の40%(最低保証料2万円)2年目以降:1年毎8千円)が必須となります。などの条件を持ち合わせています、e-roomでは渋谷区や新宿区や港区など広域にわたって賃貸物件情報を多数ご紹介しております。
Copyright © 2024 賃貸のe-room All rights reserved.