※掲載のないお部屋もリアルタイムで確認いたします。
現状募集中のお部屋はご案内可能です。
パークキューブ愛宕山タワーの事は何でもご相談ください。
パークキューブ愛宕山タワーのお問い合わせ番号は『156』です。
東京都渋谷区代々木1-38-8 株式会社本州企画 代々木支店 e-room
東京都知事(12)34823号
港区西新橋3-17-7

家賃:420000円 1LDK

家賃:420000円 2LDK

家賃:420000円 1LDK

家賃:420000円 77.96㎡
このページはパークキューブ愛宕山タワー702号室の賃貸情報専用のご紹介ページです。
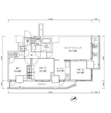
パークキューブ愛宕山タワー702号室は2007年2月に港区西新橋3-17-7に施工されたRC造31階・地下1階建のマンションの7階部分のお部屋です。3LDKのタイプのお部屋で広さが68.57㎡あり、敷金が1ヶ月・礼金が1ヶ月にお家賃420,000円に管理費0円です。仲介手数料無料・ペット相談可・フロントサービス・オートロック・宅配ボックス・システムキッチン・浴室乾燥機・追焚機能・洗面所独立・BS・CS・CATV・駐車場※保証会社のご利用(初回総賃料の50%・1年毎に9600~10000円)が必須となります。などの条件を持ち合わせています、e-roomでは渋谷区や新宿区や港区など広域にわたって賃貸物件情報を多数ご紹介しております。
Copyright © 2024 賃貸のe-room All rights reserved.