※掲載のないお部屋もリアルタイムで確認いたします。
現状募集中のお部屋はご案内可能です。
グランスイート代々木の事は何でもご相談ください。
グランスイート代々木のお問い合わせ番号は『2204』です。
東京都渋谷区代々木1-38-8 株式会社本州企画 代々木支店 e-room
東京都知事(12)34823号
渋谷区千駄ヶ谷5-23-6

家賃:192000円 1R

家賃:192000円 1K

家賃:192000円 1LDK

家賃:191000円 1R

家賃:191000円 1R

家賃:190000円 1LDK

家賃:189000円 46.81㎡

家賃:190000円 49.11㎡

家賃:192000円 55.38㎡
このページはグランスイート代々木503号室の賃貸情報専用のご紹介ページです。
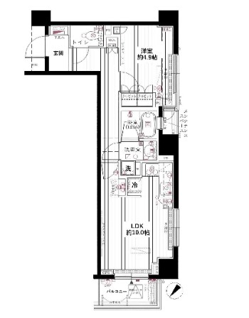
グランスイート代々木503号室は2006年3月に渋谷区千駄ヶ谷5-23-6に施工されたRC造12階建のマンションの5階部分のお部屋です。1LDKのタイプのお部屋で広さが41.54㎡あり、敷金が1ヶ月・礼金が1ヶ月にお家賃188,000円に管理費10,000円です。オートロック・宅配ボックス・システムキッチン・浴室乾燥機・追炊機能・駐輪場・バイク置場・駐車場※分譲なのでお部屋によって設備・仕様・条件が異なります。などの条件を持ち合わせています、e-roomでは渋谷区や新宿区や港区など広域にわたって賃貸物件情報を多数ご紹介しております。
Copyright © 2024 賃貸のe-room All rights reserved.