※掲載のないお部屋もリアルタイムで確認いたします。
現状募集中のお部屋はご案内可能です。
パークアクシス渋谷桜丘ウエストの事は何でもご相談ください。
パークアクシス渋谷桜丘ウエストのお問い合わせ番号は『228』です。
東京都渋谷区代々木1-38-8 株式会社本州企画 代々木支店 e-room
東京都知事(12)34823号
渋谷区桜丘町8-16

家賃:284000円 1LDK+Sic

家賃:284000円 2LDK

家賃:283000円 1LDK+S

家賃:283000円 2SLDK

家賃:283000円 2LDK

家賃:282000円 1R

家賃:280000円 50.64㎡

家賃:280000円 51.01㎡

家賃:280000円 52.43㎡

家賃:277000円 52.81㎡

家賃:277000円 52.81㎡

家賃:283000円 52.89㎡
このページはパークアクシス渋谷桜丘ウエスト1106号室の賃貸情報専用のご紹介ページです。
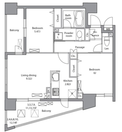
パークアクシス渋谷桜丘ウエスト1106号室は2006年9月に渋谷区桜丘町8-16に施工されたRC造14階建のマンションの11階部分のお部屋です。1LDKのタイプのお部屋で広さが43.49㎡あり、敷金が1ヶ月・礼金が1ヶ月にお家賃280,000円に管理費15,000円です。仲介手数料無料・ペット相談可・オートロック・宅配ボックス・システムキッチン・浴室乾燥機・洗面台・追焚機能・オートバス・エアコン・CATV・駐車場・駐輪場※保証会社のご利用(初回総賃料の50%・1年毎に9600~10000円)が必須となります。などの条件を持ち合わせています、e-roomでは渋谷区や新宿区や港区など広域にわたって賃貸物件情報を多数ご紹介しております。
Copyright © 2024 賃貸のe-room All rights reserved.