※掲載のないお部屋もリアルタイムで確認いたします。
現状募集中のお部屋はご案内可能です。
パークハビオ東中野の事は何でもご相談ください。
パークハビオ東中野のお問い合わせ番号は『292』です。
東京都渋谷区代々木1-38-8 株式会社本州企画 代々木支店 e-room
東京都知事(12)34823号
中野区東中野1-58-6

家賃:141000円 1K

家賃:141000円 1R

家賃:140000円 1R

家賃:140000円 1K

家賃:140000円 1K

家賃:140000円 1K

家賃:136000円 32.30㎡

家賃:138000円 33.07㎡

家賃:135000円 34.53㎡

家賃:134000円 38.50㎡
このページはパークハビオ東中野207号室の賃貸情報専用のご紹介ページです。
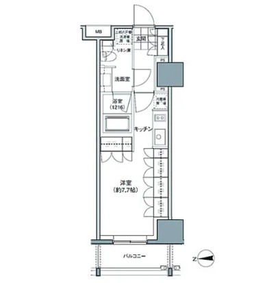
パークハビオ東中野207号室は2010年12月に中野区東中野1-58-6に施工されたRC造地上15階・地下1階建のマンションの2階部分のお部屋です。1Rのタイプのお部屋で広さが26.70㎡あり、敷金が1ヶ月・礼金が1ヶ月にお家賃137,000円に管理費8,000円です。仲介手数料無料・ペット相談可・楽器相談可・SOHO相談可・オートロック・宅配ボックス・シャワートイレ・浴室乾燥機・洗面所独立・駐輪場・駐車場・バイク置場※保証会社のご利用(日本セーフティー 初年度委託料:賃料等合計額の30%(最低保証料1.2万円)2年目以降:1年毎1万円)が必須となります。などの条件を持ち合わせています、e-roomでは渋谷区や新宿区や港区など広域にわたって賃貸物件情報を多数ご紹介しております。
Copyright © 2024 賃貸のe-room All rights reserved.