※掲載のないお部屋もリアルタイムで確認いたします。
現状募集中のお部屋はご案内可能です。
パークアクシス大塚の事は何でもご相談ください。
パークアクシス大塚のお問い合わせ番号は『3733』です。
東京都渋谷区代々木1-38-8 株式会社本州企画 代々木支店 e-room
東京都知事(12)34823号
豊島区北大塚2-3-11

家賃:254000円 1LDK

家賃:253000円 1DK

家賃:253000円 2LDK

家賃:253000円 2LDK

家賃:253000円 2LDK

家賃:252000円 1LDK+D+W
このページはパークアクシス大塚301号室の賃貸情報専用のご紹介ページです。
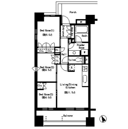
パークアクシス大塚301号室は2005年12月に豊島区北大塚2-3-11に施工されたRC造14階建のマンションの3階部分のお部屋です。3LDKのタイプのお部屋で広さが60.04㎡あり、敷金が1ヶ月・礼金が1ヶ月にお家賃250,000円に管理費12,000円です。仲介手数料無料・アップライトピアノ相談可・オートロック・宅配ボックス・システムキッチン・浴室乾燥機・シャワートイレ・BS・CS・CATV・駐輪場※保証会社のご利用(初回総賃料の50%・1年毎に9600~10000円)が必須となります。などの条件を持ち合わせています、e-roomでは渋谷区や新宿区や港区など広域にわたって賃貸物件情報を多数ご紹介しております。
Copyright © 2024 賃貸のe-room All rights reserved.