※掲載のないお部屋もリアルタイムで確認いたします。
現状募集中のお部屋はご案内可能です。
パークアクシス両国の事は何でもご相談ください。
パークアクシス両国のお問い合わせ番号は『6011』です。
東京都渋谷区代々木1-38-8 株式会社本州企画 代々木支店 e-room
東京都知事(12)34823号
墨田区緑1-5-13

家賃:128000円 1K

家賃:128000円 1R

家賃:128000円 1K

家賃:128000円 1K

家賃:128000円 Studio

家賃:128000円 1K

家賃:127000円 31.08㎡

家賃:120000円 31.42㎡

家賃:128000円 31.62㎡

家賃:127000円 32.58㎡
このページはパークアクシス両国1003号室の賃貸情報専用のご紹介ページです。
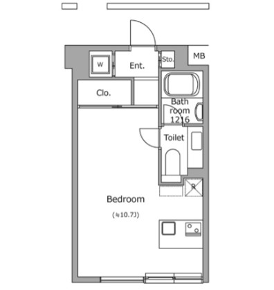
パークアクシス両国1003号室は2012年8月に墨田区緑1-5-13に施工されたRC造11階建のマンションの10階部分のお部屋です。1Kのタイプのお部屋で広さが25.04㎡あり、敷金が1ヶ月・礼金が1ヶ月にお家賃124,000円に管理費8,000円です。仲介手数料無料・ペット相談可・アップライトピアノ相談可能・オートロック・宅配ボックス・システムキッチン・浴室乾燥機・シャワートイレ・駐車場・駐輪場※保証会社のご利用(初回総賃料の50%・1年毎に9600~10000円)が必須となります。などの条件を持ち合わせています、e-roomでは渋谷区や新宿区や港区など広域にわたって賃貸物件情報を多数ご紹介しております。
Copyright © 2024 賃貸のe-room All rights reserved.