※掲載のないお部屋もリアルタイムで確認いたします。
現状募集中のお部屋はご案内可能です。
イプセ学芸大学の事は何でもご相談ください。
イプセ学芸大学のお問い合わせ番号は『615』です。
東京都渋谷区代々木1-38-8 株式会社本州企画 代々木支店 e-room
東京都知事(12)34823号
目黒区柿の木坂2-3-1

家賃:302000円 1LDK

家賃:301000円 1SLDK

家賃:300000円 1LDK+Loft

家賃:300000円 1LDK

家賃:300000円 1LDK

家賃:300000円 1LDK
このページはイプセ学芸大学701号室の賃貸情報専用のご紹介ページです。
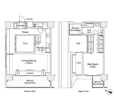
イプセ学芸大学701号室は2007年3月に目黒区柿の木坂2-3-1に施工されたRC造9階・地下1階建のマンションの7階部分のお部屋です。1LDKのタイプのお部屋で広さが68.35㎡あり、敷金が1ヶ月・礼金が1ヶ月にお家賃298,000円に管理費12,000円です。仲介手数料半額・フリーレント1ヶ月(101号室のみ適用)・2007年度グッドデザイン賞受賞・オートロック・宅配ボックス・システムキッチン・追焚機能・浴室乾燥機・ドラム式洗濯機・床暖房・駐車場※保証会社のご利用(初回総賃料の30%~・1年毎に10000円)が必須となります。などの条件を持ち合わせています、e-roomでは渋谷区や新宿区や港区など広域にわたって賃貸物件情報を多数ご紹介しております。
Copyright © 2024 賃貸のe-room All rights reserved.